
Les bords de Marne
Nous vous présentons aujourd’hui ce bel appartement niché dans un quartier calme, à deux pas des bords de Marne. Baigné de lumière, il se situe au 5ᵉ étage d’un immeuble bien entretenu.
Il offre un vaste séjour, idéalement exposé Sud, à proximité d’une cuisine aménagée et fonctionnelle : un espace convivial ouvert sur le quotidien.
Trois chambres confortables + un bureau permettent d’adapter les usages (télétravail, chambre d’enfant, invités). Deux salles de bains, deux WC et de nombreux rangements viennent compléter l’ensemble pour un confort optimal. L’entrée spacieuse dessert intelligemment l’appartement et permet d’accueillir du rangement.
Cet appartement séduit par son équilibre entre nature, confort et fonctionnalité. Que ce soit pour une famille ou un projet d’investissement, il propose un cadre de vie rare et de nombreuses possibilité d’aménagement que nous vous présentons ci-dessous. À visiter sans tarder.
Plan de repérage des prises de vues
Grace à son exposition plein sud, le salon et le bureau sont baignés de lumière toute la journée, en faisant des lieux de vie ou il fait bon passer du temps.
Afin de vous permettre de mieux comprendre l’agencement de l’appartement, vous trouverez ci-dessous le scan 3D réalisé par nos équipes
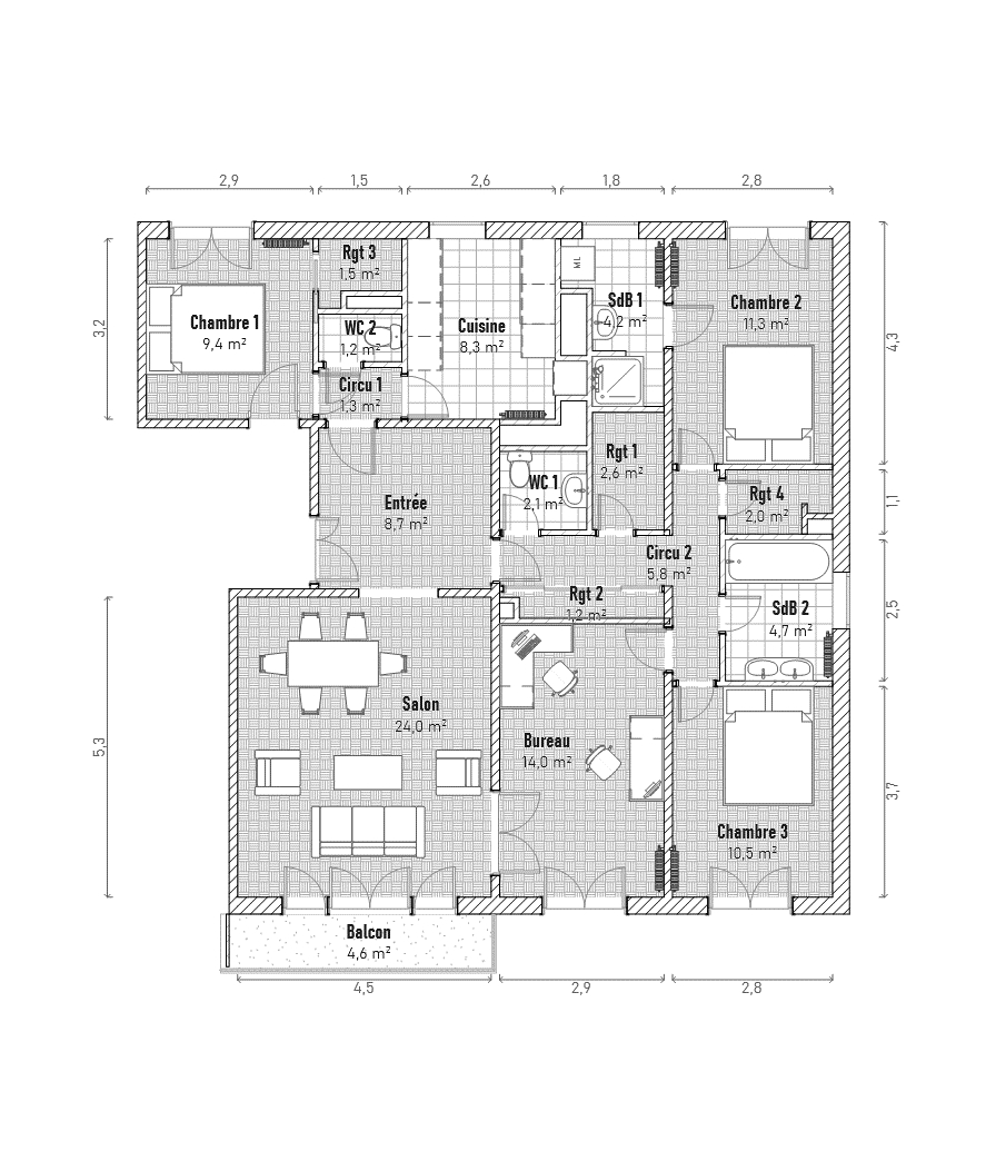
Enfin, vous trouverez ci-dessous le plan existant, ainsi que deux proposition d’aménagement, vous permettant d’adapter cet appartement selon vos besoins.
Voici le plan existant du projet. Budget : 0 €, prêt à emménager.
Attention, les budgets et délais mentionnées ici sont donnés à titre indicatifs. Le passage de trois entreprises Tout Corps d’Etats pour établir les devis et le planning des travaux est à réaliser impérativement avant de soumettre une offre d’achat. Contactez-nous si vous souhaitez une aide pour trouver des entreprises de confiances.
Ce bien vous interesse ?
Contactez-nous à contact@studiodemos.fr
Nous reviendrons vers vous sous 48h (jours ouvrés)